1
2
3
4
5
6
7
8
9
10
11











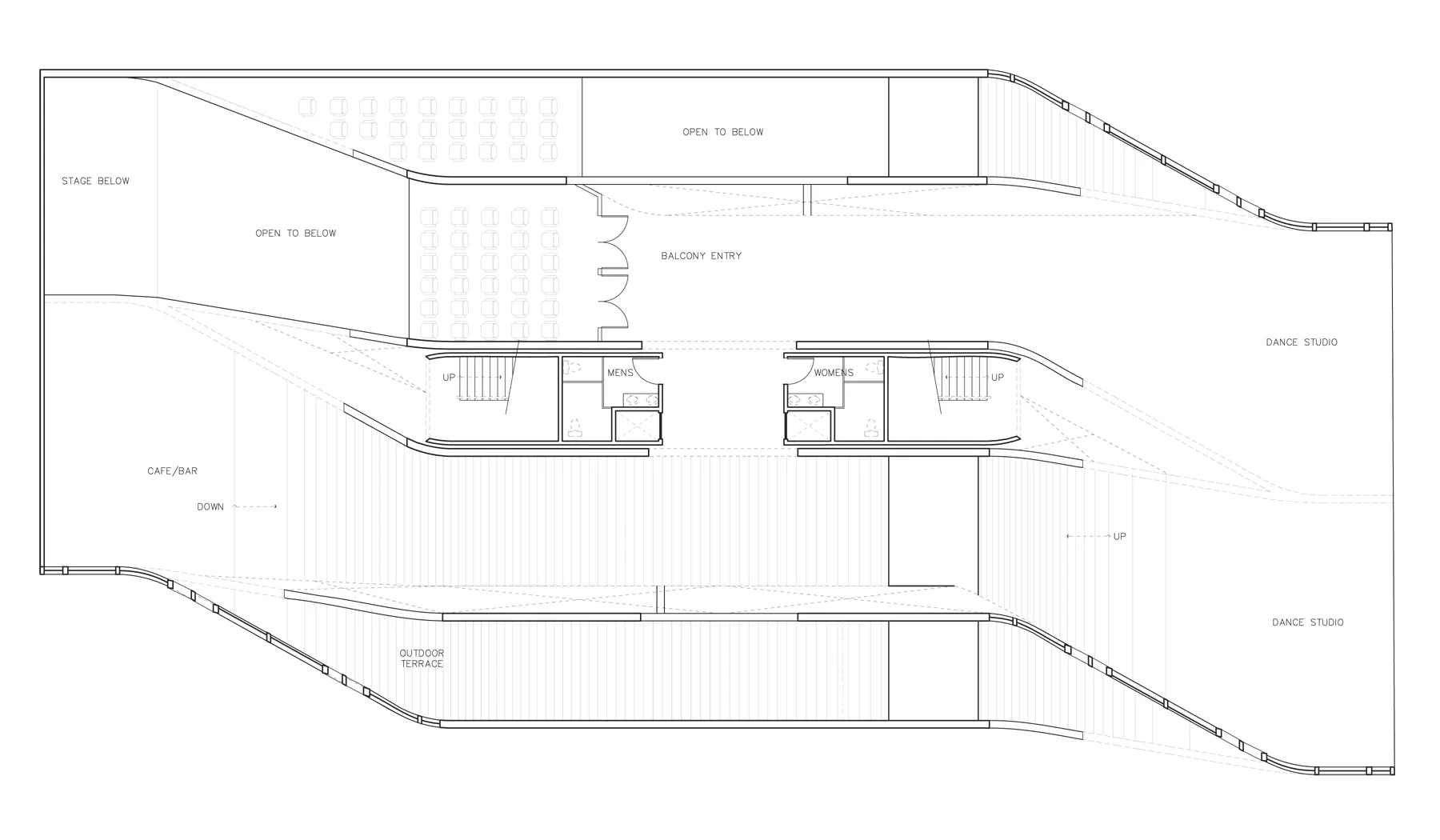
In designing a space for performing dance, the elegant movement of the dancer was considered and expressed through the flow that the structural system creates in this project. The goal was to create a system that allowed for a smooth progression through spaces and points of interest - vertically and horizontally, and indoor to outdoor. In this smooth progression, emphasis was placed on the nonexistence of columns in order to prevent any disruption from the experience. Structurally, this was possible through the design of a series of sections that performed in a horizontal manner. Since loads are distributed to the center of the building, there is opportunity to allow each floorplate to express specific movement through separation from one another. Lateral loads are accounted for in a hidden structural core at the center of the building and through braced trussing. The interior spaces created through this system allow visitors to gradually ascend and descend through program, encountering exterior terraces along the way. As this happens, spaces contract in the center of the building and expand at the cantilevering ends.